Proyecto residencial
San Vicente 72
Proyecto residencial desarrollado para una vivienda de 60 m² en el centro de Valencia, concebido desde la luz del este, la tradición mediterránea y una distribución integral.
Dirección
San Vicente 72
Superficie
60 m²
Orientación
Este
Contexto
Valencia centro

San Vicente 72 parte de un encargo de reforma integral en una vivienda situada en pleno centro de Valencia. La propuesta reorganiza sus 60 m² para dar lugar a un apartamento más claro, más funcional y mejor conectado con la luz natural de orientación este.
El concepto nace de una mirada muy ligada a Valencia: sus recorridos, sus materiales y su memoria cotidiana. El Cabanyal, la Albufera, Virutas Lab, Bodega Anyora y Nonna Design Project funcionan aquí como referencias para construir un interior cálido, tradicional y contemporáneo a la vez.
Servicios
- Concepto espacial
- Distribución integral
- Diseño de interiores
- Dirección de obras
Materiales
- Terracota
- Azulejo tradicional
- Lino
- Rafia
- Madera natural
- Piedra caliza
Referencias
- Cabanyal
- Albufera
- Virutas Lab
- Bodega Anyora
- Nonna Design Project
Proyecto
Entorno y punto de partida
La vivienda se sitúa en el centro de Valencia y se plantea desde una lectura muy conectada con la ciudad, su luz y sus recorridos cotidianos.


Proyecto
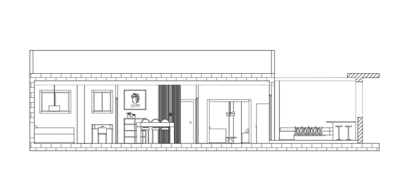
Distribución final
El proyecto articula salón-comedor, cocina, aseo, habitación, vestidor y terraza desde una organización más clara y habitable.




Proyecto
Desarrollo visual y atmósfera
Las imágenes del proyecto trasladan una atmósfera de tradición mediterránea, texturas naturales y calidez doméstica inspirada en Valencia.






Siguiente paso